MAPA DO SITE ACESSIBILIDADE ALTO CONTRASTE
CEFET-MG

Aula de Projeto Arquitetônico

Segunda-feira, 5 de junho de 2023
Última modificação: Segunda-feira, 5 de junho de 2023

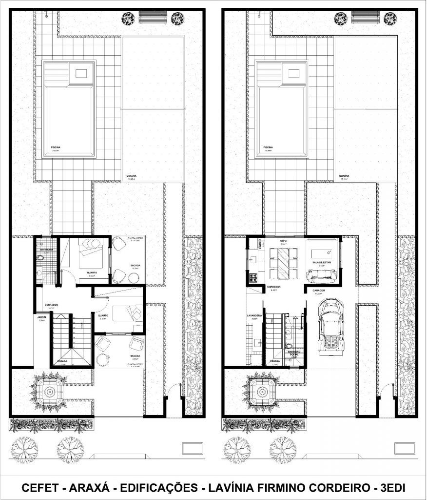
Os alunos do curso técnico em Edificações, do CEFET campus Araxá, durante a disciplina de Projeto Integrado, aprendem a desenvolver planta baixa residencial. O objetivo dessa disciplina é que os alunos produzam um projeto arquitetônico de uma residência unifamiliar de dois pavimentos de até 80m². Os projetos são autorais, cada aluno produzindo o seu projeto, mas todos levam em consideração os aspectos de insolação, ventilação, legislação, dimensionamento do lote e da residência. A ideia também é que os discentes possam pensar nas questões técnicas (estruturais, hidráulicas e elétricas) e funcionais (relacionadas à qualidades de uso dos espaços e ao cumprimento dos desejos e necessidades do cliente) durante todo o processo de projeto, comenta o Professor Fernando Braga, responsável pela disciplina.

A seguir são mostrados os alunos durante uma aula e algumas plantas baixas.